Skip to main content

ANTIGUA FÁBRICA DE HARINAS en CAMPORROBLES, VALENCIA

Rehabilitación energética enerPHIt de edificio público con cambio de uso

Rehabilitación Integral enerPHit y certificación verde

Antigua fábrica de harinas en Camporrobles, Valencia

Tipología: edificio de uso terciario
Fecha: 2021
Categoría: Rehabilitación energética de edificio terciario, Passivhaus EnerPHit, Sello VERDEUbicación: Camporrobles, Valencia
Estándar energético: Passivhaus EnerPHit
Certificación ambiental: Verde - Tres Hojas
Financiación: El proyecto ha sido reconocido con una subvención de 44.644,78 € dentro del Plan Irta 2021 para la redacción del proyecto, en el marco de las ayudas destinadas a la rehabilitación energética y sostenible del patrimonio arquitectónico.
La antigua fábrica de harinas de Camporrobles representa un testimonio industrial del patrimonio arquitectónico local. Tras la crisis sanitaria provocada por la pandemia de COVID-19, el Ayuntamiento de Camporrobles identificó la necesidad de generar nuevos espacios que impulsaran la reactivación económica y social del municipio.

El desafío consistía en transformar una estructura industrial obsoleta en un espacio contemporáneo y funcional, capaz de albergar actividades diversas que fortalecieran el tejido económico local, sin comprometer su valor arquitectónico original.

El proyecto se fundamenta en tres pilares esenciales:

Preservación Patrimonial

El edificio se encontraba en proceso de catalogación y protección arquitectónica, lo que condicionó significativamente las estrategias de intervención. Se adoptó un enfoque respetuoso con la envolvente histórica, priorizando soluciones que mantuvieran intacta la imagen exterior y los elementos característicos de la arquitectura industrial.

Máxima Eficiencia Energética

La rehabilitación se planteó bajo el exigente estándar Passivhaus EnerPHit, específicamente diseñado para la rehabilitación de edificios existentes. Este criterio garantiza un consumo energético mínimo y un máximo confort interior, reduciendo drásticamente la demanda de calefacción y refrigeración.

Sostenibilidad Integral

Más allá de la eficiencia energética, el proyecto incorpora criterios de sostenibilidad, economía circular y reducción de huella de carbono en todas sus fases, desde la selección de materiales hasta los sistemas de gestión de recursos.

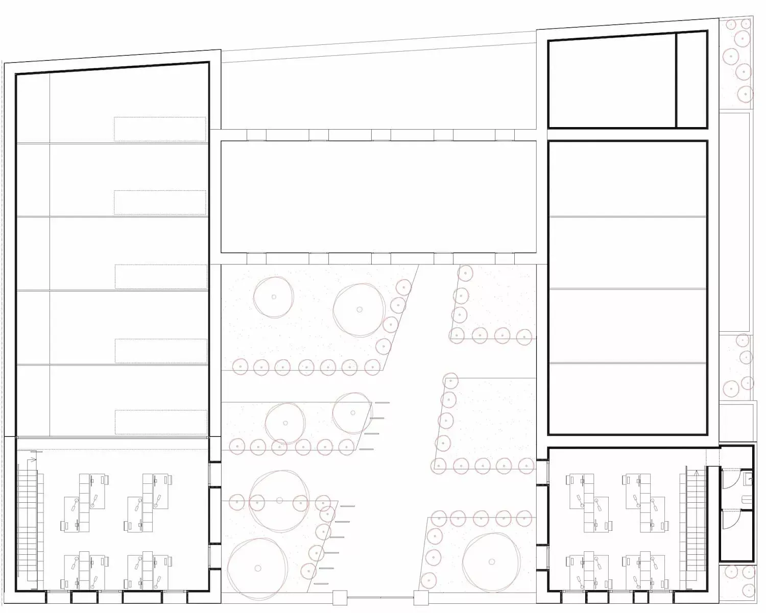
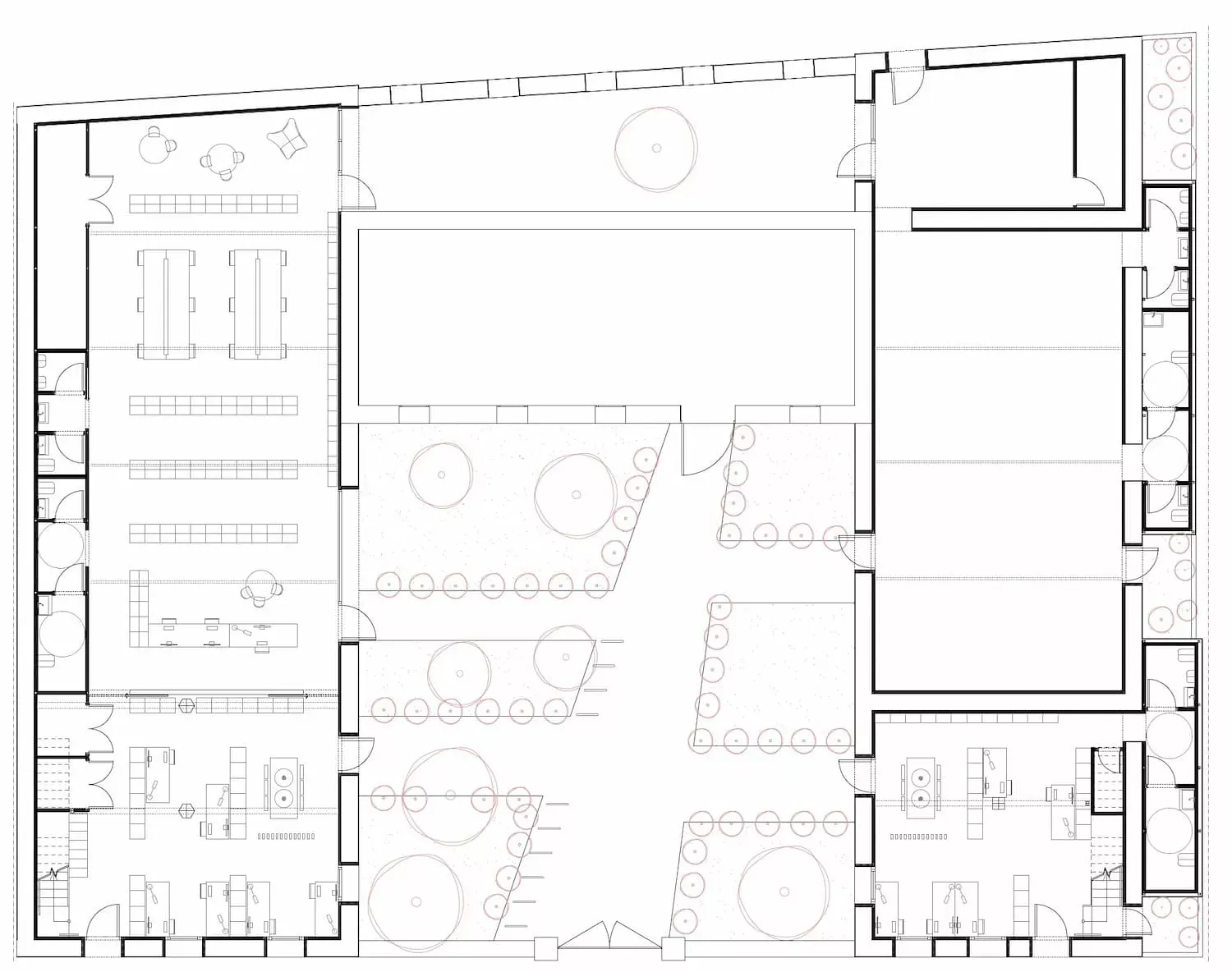
Soluciones Arquitectónicas planteadas y desarrolladas:

Dado el carácter protegido del edificio, toda la implementación del sistema de aislamiento térmico se ejecutó desde el interior de la envolvente.
Esta decisión técnica presentaba varios desafíos:

    Limitación estricta del espesor del aislamiento para preservar el volumen útil interior
    Necesidad de evitar condensaciones superficiales e intersticiales
    Garantizar la continuidad de la capa aislante en todo el perímetro
    Resolver los puentes térmicos sin alterar la fachada histórica
La solución adoptada combina materiales aislantes de alta eficiencia con membranas de control higrotérmico, asegurando tanto el comportamiento térmico como la durabilidad de la intervención.

Proyecto referente en Arquitectura Sostenible

En cuanto a la sostenibilidad del edificio, este incorpora sistemas avanzados de gestión ambiental que lo convierten en un referente de arquitectura sostenible, siendo reconocido como tal mediante la obtentición de la certificación VERDE con una calificación de TRES hojas. Si a ello añadimos el cumplimiento verificado del estándar internacional para rehabilitación de edificios Estándar Passivhaus EnerPHit tenemos como resultado un edificio óptimo con un comportamiento excepcional en términos de sostenibilidad, eficiencia energética y confort interior.


La rehabilitación de la antigua fábrica de harinas de Camporrobles representa un caso paradigmático de cómo la arquitectura puede actuar como catalizador de transformación territorial. El edificio se ha convertido en un espacio de dinamización económica que acoge actividades productivas y emprendedoras Un referente técnico en rehabilitación energética de patrimonio industrial


Un modelo de sostenibilidad que inspira futuras intervenciones en el entorno rural Un elemento de cohesión social que refuerza la identidad local Este proyecto demuestra que es posible conciliar la preservación del patrimonio arquitectónico con las exigencias contemporáneas de eficiencia energética y sostenibilidad ambiental, creando espacios que miran al futuro sin renunciar a su memoria histórica.


625 427 595
Esta dirección de correo electrónico está siendo protegida contra los robots de spam. Necesita tener JavaScript habilitado para poder verlo.

¿Alguna duda o consulta? Contacta con Nosotros.