Skip to main content

CASA PASIVA EN LA CAÑADA, VALENCIA

obra nueva PASSIVHAUS de vivienda UNIFAMILIAR en valencia

PASSIVHAUS EN La Cañada, Valencia - [Casa Ventura]

Tipología: vivienda unifamiliar aislada
Fecha: 2018
Categoría: Vivienda unifamiliar, Passivhaus
Estándar de referencia: Passivhaus (sin certificación)
La parcela en la que se debía desarrollar el proyecto no presentaba las condiciones ideales en cuanto a orientación, edificaciones colindantes, soleamiento para la Certificación Passivhaus de una vivienda unifamiliar aislada.

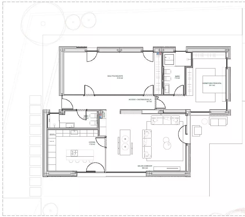
El promotor deseaba máxima eficiencia energética y un programa de vivienda reducido, desarrollado en una única planta pero con posibilidad para poder realizar una ampliación en el futuro. Todo ello suponía un reto ya que la compacidad del edificio dificultaba el cumplimiento de los requerimientos del estándar Passivhaus.

Dados de los condicionantes de partida, el resultado final fue una vivienda muy funcional donde la prioridad es la construcción de una vivienda pasiva, de mínimos requerimientos energéticos y elevado confort interior, principalmente frente la humedad excesiva, cuestión que era de elevada importancia para su promotor.
Para ello se incorporaron elementos constructivos de elevada inercia térmica que ayudaron a la amortiguación de la elevación y descenso de la temperatura y a la regulación higrotérmica del interior.

Resultado

El proyecto consiguió superar las adversidades iniciales, logrando cumplir con los requisitos para la obtención de la certificación Passivhaus en una parcela con condicionantes complejos.
El resultado es una vivienda extremadamente funcional que prioriza:

Mínimos requerimientos energéticos de climatización

Confort interior óptimo durante todo el año

Control efectivo de humedad y temperatura

Flexibilidad para ampliaciones futuras sin comprometer la eficiencia

La vivienda demuestra que es posible alcanzar los más altos estándares de eficiencia energética incluso cuando las condiciones de partida no son las ideales.


625 427 595
Esta dirección de correo electrónico está siendo protegida contra los robots de spam. Necesita tener JavaScript habilitado para poder verlo.

¿Alguna duda o consulta? Contacta con Nosotros.