Skip to main content

Construcción Passivhaus DE OBRA NUEVA

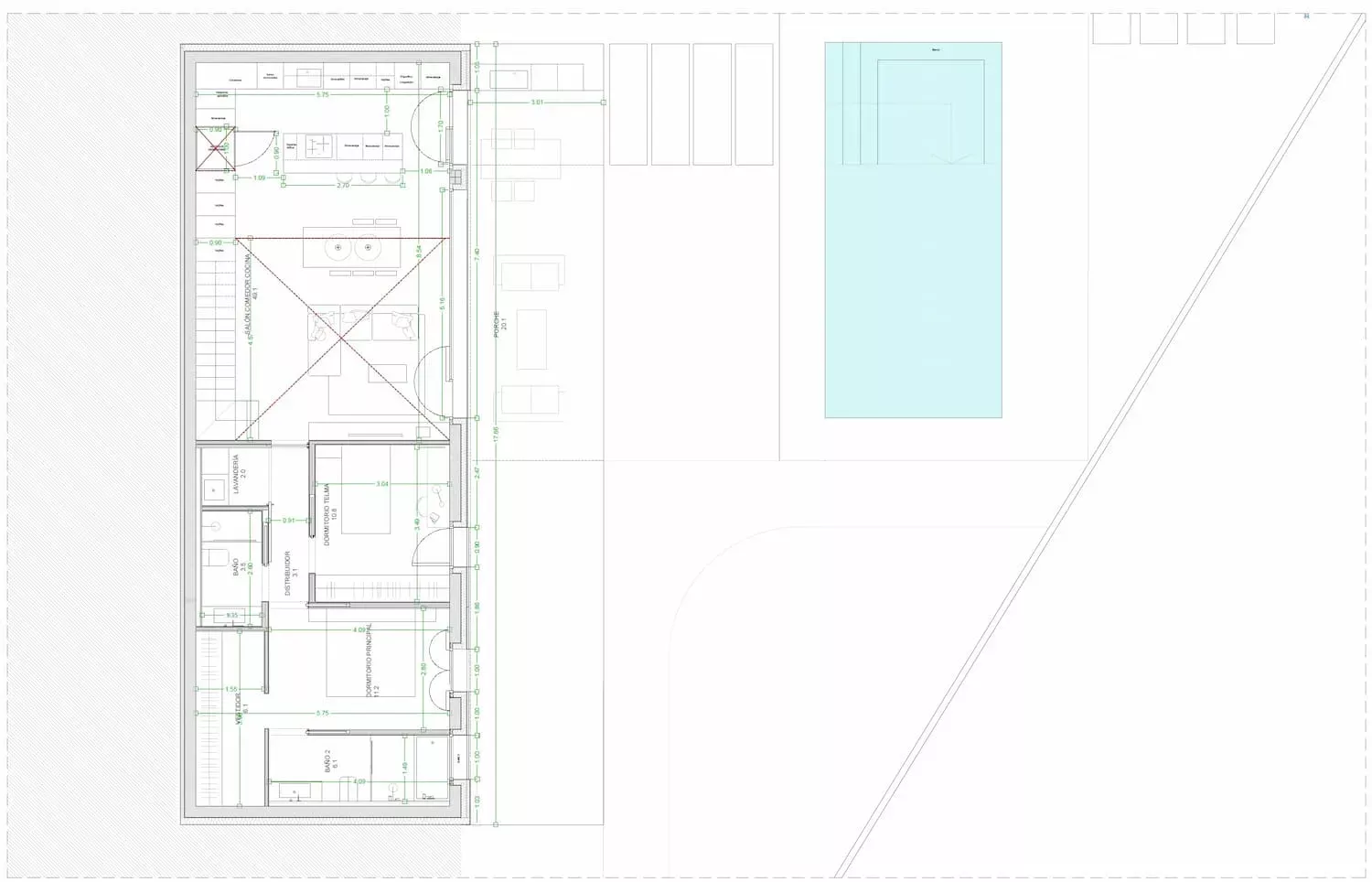
VIVIENDA PASSIVHAUS EN PICASSENT, Valencia

El proyecto partió de varios condicionantes que marcarían el diseño de esta vivienda: una parcela con una elevada pendiente, el deseo de los clientes de la vinculación del espacio exterior con el interior, y la certificación Passivhaus de la vivienda.

LA CASA MIRADOR

Tipología: vivienda unifamiliar aislada

Fecha: 2019

Categoría: Vivienda unifamiliar, Passivhaus, interiorismo.

La parcela, situada en esquina, presentaba los condicionantes ideales en cuanto a orientación, edificaciones colindantes, ventilación, soleamiento, etc.

El desnivel existente en la parcela se aprovechó para la creación de una vivienda escalonada que sacaba el máximo partido a cada nivel y minimizaba el sobrecoste de las excavaciones que se debían realizar. De esta forma, la mayor parte del programa de la vivienda se encontraba semienterrada permitiendo situar los espacios interiores a la misma cota que los espacios exteriores de la parcela. El semisoterramiento ayuda, desde el punto de vista de la eficiencia energética, a la disipación de las cargas internas en verano, y reduce la exposición en invierno. También, en este caso, aumentaba la privacidad de los espacios exteriores, cuestión importante para los promotores.El diseño de los espacios interiores debía tener un aire industrial y muy funcional, en el que el hormigón y el hierro fueran protagonistas.

¿POR QUÉ LA CASA MIRADOR?

A la altura de la cota del viario, se desarrollaba la zona de aparcamiento y se sitúa la entrada de la vivienda, volcada a doble altura sobre la zona de día y que da acceso a un mirador que ofrece vistas del paisaje que ofrece la zona y donde se ubica la zona de estudio. Como gran parte de la cubierta de la vivienda se sitúa en este nivel, se aprovechó su extensión para desarrollar un huerto que diera servicio a la vivienda.

625 427 595
Esta dirección de correo electrónico está siendo protegida contra los robots de spam. Necesita tener JavaScript habilitado para poder verlo.


APUESTA POR LA CALIDAD, ANÍMATE A VIVIR MEJOR